89平现代混搭质感二人世界

建筑区域为89平方米,成本为50万元人民币,项目坐标:Nanshan,深圳,完成时间:2023年5月,此案的所有者喜欢深色的空间和夫妇的世界,并希望整体布局完全开放。两种看似矛盾的风格,复古和现代,巧妙地整合在这个房屋中,透明的空间和平静的颜色匹配营造出现代的生活氛围。

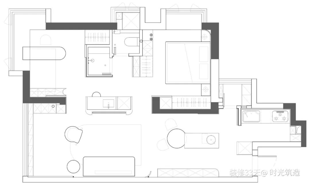
计划结构图

地板布局
视频

弯曲线轻轻分开沉没的入口大厅。 Terrazzo地板瓷砖丰富了空间的质地。调料镜站在顶部,以保持墙壁的完整性。镜像对称关系在视觉上延伸了空间,从而减少了进入家庭区域的狭窄感觉。

在墙上安装小型存储架开yunapp体育官网入口下载手机版,艺术储物托盘营造出精致的家庭氛围

客厅使用复古的混合态度开元ky888棋牌官网版,再加上高度理性的现代主义,而微水泥 +木材技术使房屋可以展示质感的电影氛围,从而使空间开放和连贯。

大的黑色皮革沙发,带有硬式座椅袋,浅灰色的地毯和圆桌形成灰色色调分层梯度和叠加。匹配看起来很简单,但是每个观点都是微妙的。

“ Ripples”出现在墙壁背景上,这是起居室和餐厅之间的巧妙分裂

客厅整洁且高端,整个家庭中都有不锈钢材料。阳台的角落装饰有镜柜,它与不锈钢的透明质地相呼应,并且与灵活的空间布局一致。

黑色家具以灰色用于增强水平,形成仅属于您的“宁静”,绿色植物带来活力和悠扬和舒适感

开放布局被电视背景墙围绕在C位置,并且灵活而连贯的动态线路连接日常生活,从而使大量的规模感可以从有限的容量中扩展到。

阳台创建了半壁橱柜,形成一个透明的窗户角,威尼斯窗帘雕塑灯光和阴影,黑暗系统下的空间氛围使生活赋予了高端质地

公共区域的照明布局非常高端,具有透明的分层感。各种类型的灯履行自己的职责,并以巨大的精力爆发。在五星级照明设计下,微水泥散发出精致而豪华的质地。房屋的气氛安静而稳定。

餐厅的总体功能计划很明确。根据所有者的生活习惯,岛屿功能更为突出,从而削弱了餐桌的存在。

在岛上创建了一个水槽,以改善餐厅区域的实用性。这家餐厅不再是传统的餐饮场所,也是一个烹饪区,以减轻中间厨房的压力。

餐桌和椅子很简单,整洁,不锈钢与经典的黑色配对,适合现代而平静的空间。储物柜携带餐具柜以铺开墙壁,深色木材丰富了墙壁质地,同时带来了足够的存储功能。

厨房的存在感较弱,简化的单线布局,冰箱嵌入墙壁中,橱柜由镜子不锈钢制成,并伴随着聚光灯的清晰光线,使厨房充满了时尚和技术意义。它采用了日式厨房设计,存储和动态线条非常人性化。小而精致的模型是日式厨房的最大亮点。

独立的研究宽敞明亮,定制桌子和L形窗户融合在一起,使空间变得极端,同时扩大了桌子的表面开yun体育官网入口登录app,使办公区更加镇定和大气

转角空间使用推式柜来最大程度地利用角凹槽区域来丰富存储功能。同时,学习室还配备了触发器床,该床充当临时的次要卧室,可在多个房间中使用。

主卧室,半壁装饰面板被扩展到床头区域,湾窗角采用弯曲的过渡。温和的包装趋势为睡眠区带来了一些安全感

衣柜的底部被黑色的装饰面板覆盖,角落延伸到床头柜。精美的壁灯固定在床边,温暖的灯伴随着您入睡。

连接的空间被滑动门阻塞,从而使视觉效果更完整和统一。打开时,它是一个完全开放的空间,它突出了布局的巧妙和敏捷性。整个房屋的定制深色木材遍布整体,展示了平静和约束风格。

洗涤盆和电视共享墙壁,整合功能和布局,可有效地使用空间,使研究,主卧室,洗衣区和客厅完美地联系在一起,迁移线敏捷而有趣

浴室,独立的厕所区和淋浴区分别用折叠玻璃门分开,它们既美丽又透明。厕所室设有一个小型浴室,可创造干净有效的质量寿命。

淋浴室采用整体浴室设计,定制尺寸可完美地使用空间,符合人体工程学,提供康复并享受沐浴时间。黑色淋浴喷头的细节回应了整个房屋的风格,细节是质量的。
设计|时间建设(深圳)